сегодня
Продажа нежилого помещения
Красноярск, Советский район, Солнечный, Молодежный проспект, 33
19 790 000 руб.
Площадь
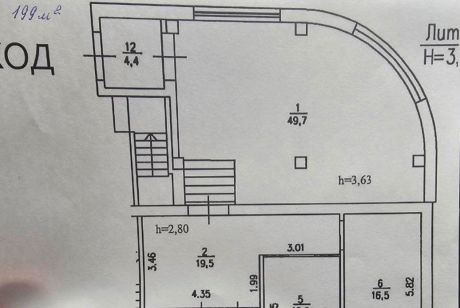
- Общая:
- 199/м2
Детали
| Этаж | 1 |
|---|---|
| Этажность | 10 |
| Материал дома | монолит |
| Планировка | индивидуальная |
| Тип планировки | смежно-изолированная |
| Санузел | 2 санузла |
| Состояние | требует ремонта |
Подробно
Ерофеевская д.2 9-этажный монолитный дом в третьем микрорайоне Солнечного.
Дом состоит из четырех отдельно стоящих секций.
Благоустройство прилегающей территории включает в себя организацию детских и спортивных площадок, зон отдыха и озеленение.
В шаговой доступности находятся детские сады, школы, медицинские учреждения, аптеки, библиотека и продовольственные магазины.
Универсальное нежилое помещение на 1 этаже с 2 отдельными входами 199 кв.м.
Вячеслав Громов
+7(
Будьте бдительны! Не отправляйте предоплату и задатки.
Быстрый поиск похожих объектов
Советский район
микрорайон Солнечный
Молодежный проспект
Материал: монолит
Планировка: индивидуальная
Санузел: 2 санузла
Состояние: требует ремонта
Похожие предложения










































